06 87 75 22 52
61 Rue du Dr Escat, 13006 Marseille

Charmant Appartement T2 avec Jardin Privatif à Château Gombert


< Retour

Partager sur

gallery loader

Appartement 46 m² - 2 Pièces - Marseille 931 € CC*


Description de l'offre Ref locescalletA02t2555


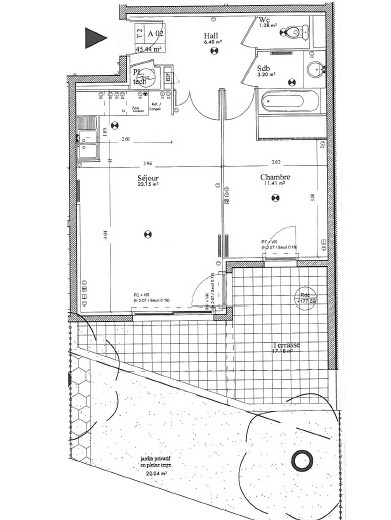
Situé dans une résidence fermée et sécurisée au 15 rue de l'Escallet, Résidence le clos Estello, cet appartement de type 2 en rez-de-chaussée offre un cadre de vie paisible et ensoleillé. Avec une surface de 46 m², il dispose d'une grande cuisine aménagée, d'un beau séjour ouvrant sur une terrasse et un jardin privatif de 65 m², idéal pour profiter des journées ensoleillées sans vis-à-vis. La chambre de 11 m² est équipée de placards intégrés, et l'appartement comprend également une salle de bain et un WC séparé. Vous bénéficierez de deux places de parking en sous-sol, assurant un stationnement facile et sécurisé. Proche des transports en commun et des écoles, cet appartement est idéalement situé pour un quotidien pratique et agréable. Le loyer est de 931 € provisions sur charges inclus (comprenant l'eau et l'entretien des parties communes). Les honoraires à la charge du locataire s'élèvent à 598 €. Bien disponible

Diagnostics de performance énergétique


DPE
DPE
DPE ANCIENNE VERSION

Descriptif du bien


Code postal 13013


Surface habitable (m²) 46 m²


Surface loi Boutin (m²) 46 m²


Nombre de chambre(s) 1


Nombre de pièces 2


Meublé NON


Ascenseur NON


Vue Dégagée


Nb de salle de bains 1


Cuisine SEPAREE


Type de cuisine SEMI-EQUIPEE


Mode de chauffage Electrique, Electrique


Type de chauffage Autre, Radiateur


Format de chauffage AUTRE, Individuel


Interphone OUI


Terrasse OUI


Cave NON


Exposition SUD-EST


Année de construction 2010


Quartier chateau gombert


Copropriété NON


Loyer CC* / mois 931 €


Honoraires TTC charge locataire 598 €


Dont état des lieux 136,32 €


Dépôt de garantie TTC 871 €


Charges locatives (Previsionnelles mensuelles les avec regularisation annuelle) 60 €


Cette annonce vous intéresse ?


* Champs obligatoires

* : Les informations recueillies sur ce formulaire sont enregistrées dans un fichier informatisé par La Boite Immo agissant comme Sous-traitant du traitement pour la gestion de la clientèle/prospects de l'Agence / du Réseau qui reste Responsable du Traitement de vos Données personnelles. La base légale du traitement repose sur l'intérêt légitime de l'Agence / du Réseau. Elles sont conservées jusqu'à demande de suppression et sont destinées à l'Agence / au Réseau. Conformément à la loi « informatique et libertés », vous disposez des droits d’accès, de rectification, d’effacement, d’opposition, de limitation et de portabilité de vos données. Vous pouvez retirer votre consentement à tout moment en contactant directement l’Agence / Le Réseau. Consultez le site https://cnil.fr/fr pour plus d’informations sur vos droits. Si vous estimez, après avoir contacté l'Agence / le Réseau, que vos droits « Informatique et Libertés » ne sont pas respectés, vous pouvez adresser une réclamation à la CNIL. Nous vous informons de l’existence de la liste d'opposition au démarchage téléphonique « Bloctel », sur laquelle vous pouvez vous inscrire ici : https://www.bloctel.gouv.fr Dans le cadre de la protection des Données personnelles, nous vous invitons à ne pas inscrire de Données sensibles dans le champ de saisie libre.
Ce site est protégé par reCAPTCHA, les Politiques de Confidentialité et les Conditions d'Utilisation de Google s'appliquent.

* CC : Charges comprises