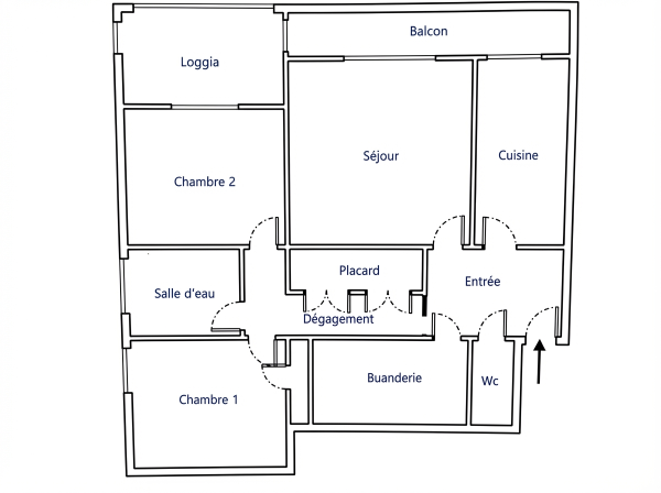
Situé dans une belle résidence de standing, au calme absolu, avenue de La Jarre dans le 9ème arrondissement de Marseille, ce grand appartement de type 2 est en parfait état et mis en vente pour cause de retraite. Sis au 2ème étage d'un immeuble de 4 étages, cet appartement se compose d'un hall d'entrée, d'un séjour...
